- Semi Detached House
- Large Corner Plot
- Lovely Gardens
- Off Street Parking
- No Onward Chain
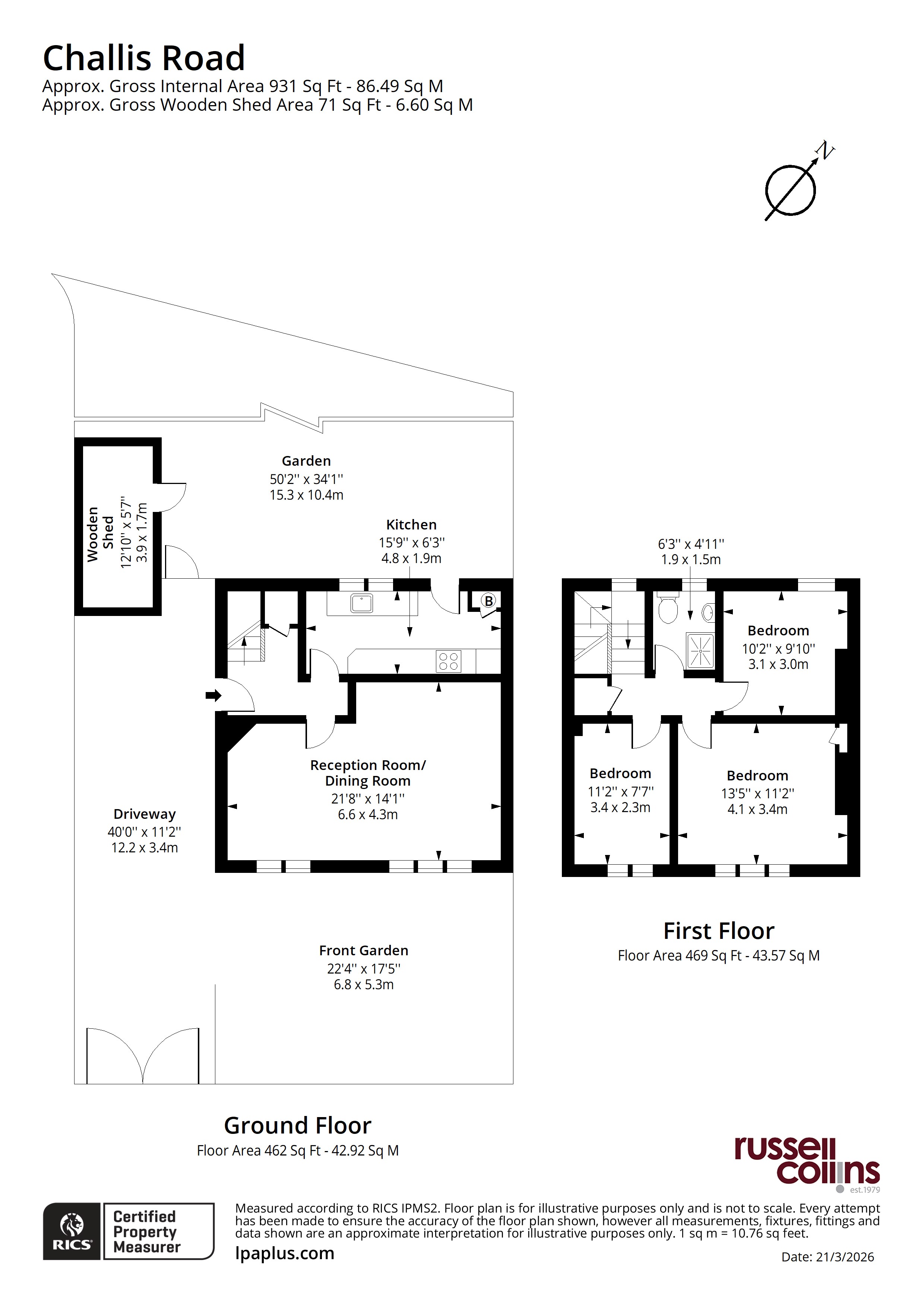
- 931 Sq Ft(86.49 sq M)
- W5/TW8
- 3 Bedrooms
- Close to A4/M4
- Between Main Line & Piccadilly Line
Full Description
Set on a generous corner plot on the W5 TW8 border, this well-kept three bedroom semi-detached house is surrounded by gardens to the front, side and rear, providing an uncommon amount of outdoor space including off street parking and an extra wide rear garden. Available with no onward chain.
Three Bedroom Semi-detached house on Corner Plot with Gardens
Set on a generous corner plot on the W5 TW8 border, this well-kept three bedroom semi-detached house is surrounded by gardens to the front, side and rear, providing an uncommon amount of outdoor space.
The ground floor includes a bright dual aspect living room and a spacious kitchen that opens directly onto a wide rear garden, with the added benefit of side access. Upstairs are three well-proportioned bedrooms and a modern shower room with WC. Off street parking is available at the front of the property.
Located close to the Thames and Brentford's riverside, the house is well placed for South Ealing & Northfields Piccadilly Line Stations. Road links via the A4 and M4 and nearby Brentford Station are easily accessible, with buses connecting to Ealing Broadway and Chiswick, including the Elizabeth Line.
ENTRANCE HALL Radiator, under stairs storage cupboard, tiled floor, glazed doors to reception room & kitchen.
RECEPTION ROOM Double-glazed windows, cast iron fireplace, radiators, engineered wood flooring, glazed door, electricity meter.
KITCHEN Wall & base units, gas hob, double electric oven & grill, stainless steel cooker hood, space for fridge freezer, plumbing for washing machine, stainless steel sink unit & mixer tap, central heating boiler, under counter freezer, tiled floor.
FIRST FLOOR LANDING Double-glazing, linen cupboard.
BEDROOM Dado, double-glazing, radiator, storage cupboard.
BEDROOM Dado, double-glazing, radiator.
BEDROOM Dado, double-glazing, radiator.
BATHROOM/WC Shower with glass doors, WC, wash hand basin with storage below, tiled & walls, chrome heated towel rail, double-glazing, glass fronted medicine cabinet.
FRONT GARDEN Off-street parking for 2 cars, lawn, hedge.
REAR GARDEN Lawn, patio, mature shrubs, outside tap & light, timber shed, side access.
OVERALL SIZE 931 sq ft (86.49 sq m)
PARKING CPZ BN Mon-Fri 10-11am & 3-4pm
COUNCIL TAX Band D - London Borough of Hounslow
£2185.56 - 2026/2027
Viewing
Please contact us on 020 8567 7080 if you wish to arrange a viewing appointment for this property, or require further information.
Energy Performance Certificate
Click here to view the Energy Efficiency Rating and Environmental Impact Rating for this property.
Disclaimer
Russell Collins W5 endeavour to maintain accurate depictions of properties in Virtual Tours, Floor Plans and descriptions, however, these are intended only as a guide and purchasers must satisfy themselves by personal inspection.
Three Bedroom Semi-detached house on Corner Plot with Gardens
Set on a generous corner plot on the W5 TW8 border, this well-kept three bedroom semi-detached house is surrounded by gardens to the front, side and rear, providing an uncommon amount of outdoor space.
The ground floor includes a bright dual aspect living room and a spacious kitchen that opens directly onto a wide rear garden, with the added benefit of side access. Upstairs are three well-proportioned bedrooms and a modern shower room with WC. Off street parking is available at the front of the property.
Located close to the Thames and Brentford's riverside, the house is well placed for South Ealing & Northfields Piccadilly Line Stations. Road links via the A4 and M4 and nearby Brentford Station are easily accessible, with buses connecting to Ealing Broadway and Chiswick, including the Elizabeth Line.
ENTRANCE HALL Radiator, under stairs storage cupboard, tiled floor, glazed doors to reception room & kitchen.
RECEPTION ROOM Double-glazed windows, cast iron fireplace, radiators, engineered wood flooring, glazed door, electricity meter.
KITCHEN Wall & base units, gas hob, double electric oven & grill, stainless steel cooker hood, space for fridge freezer, plumbing for washing machine, stainless steel sink unit & mixer tap, central heating boiler, under counter freezer, tiled floor.
FIRST FLOOR LANDING Double-glazing, linen cupboard.
BEDROOM Dado, double-glazing, radiator, storage cupboard.
BEDROOM Dado, double-glazing, radiator.
BEDROOM Dado, double-glazing, radiator.
BATHROOM/WC Shower with glass doors, WC, wash hand basin with storage below, tiled & walls, chrome heated towel rail, double-glazing, glass fronted medicine cabinet.
FRONT GARDEN Off-street parking for 2 cars, lawn, hedge.
REAR GARDEN Lawn, patio, mature shrubs, outside tap & light, timber shed, side access.
OVERALL SIZE 931 sq ft (86.49 sq m)
PARKING CPZ BN Mon-Fri 10-11am & 3-4pm
COUNCIL TAX Band D - London Borough of Hounslow
£2185.56 - 2026/2027
Viewing
Please contact us on 020 8567 7080 if you wish to arrange a viewing appointment for this property, or require further information.
Energy Performance Certificate
Click here to view the Energy Efficiency Rating and Environmental Impact Rating for this property.
Disclaimer
Russell Collins W5 endeavour to maintain accurate depictions of properties in Virtual Tours, Floor Plans and descriptions, however, these are intended only as a guide and purchasers must satisfy themselves by personal inspection.

