- Classic Victorian Terrace
- 3 Beds + Study
- 2 Bathrooms
- Loft Conversion With En Suite
- Large Rear Garden
- Open Plan Ground Floor
- Superb Location
- Very Close to Lammas Park
- No Onward Chain
- Near Piccadilly Line
Full Description
A 3 double bed Terrace (+ study area) and two bathrooms. A substantial kitchen extension incorporates integrated Bosch appliances and opens via French doors to a notably large garden. Superbly located by Lammas Park. No onward chain.
Refined Victorian Terrace with Garden and Loft Ensuite
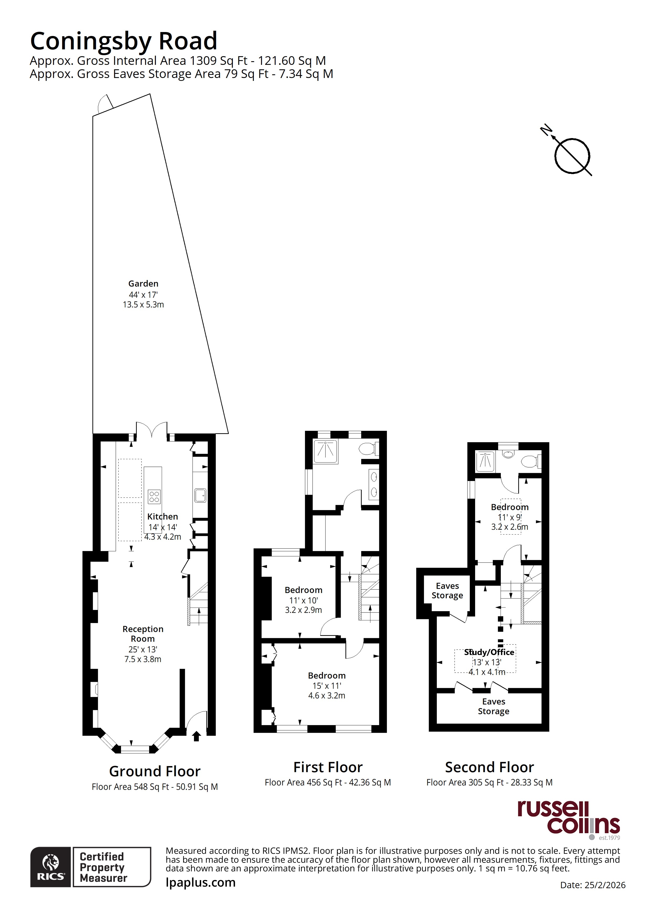
This well-proportioned Victorian terrace blends original detail with thoughtful updates across three double bedrooms, a study area and two bathrooms. A high-ceilinged entrance hall with retained coving leads to a front reception with a wide bay, double-glazed sash windows and plantation shutters. To the rear, a substantial kitchen extension incorporates integrated Bosch appliances and opens via French doors to a notably large, low-maintenance garden.
The first floor provides two double bedrooms and a generous bathroom, complemented by a dressing room that works equally well as a walk-in wardrobe. The converted loft adds a further bedroom with en-suite facilities, plus a useful ancillary space with restricted head height and extensive eaves storage.
The house sits close to Lammas Park and Walpole Park, with South Ealing Station and Ealing Broadway within easy reach, alongside local schools, cafés and nurseries.
ENTRANCE HALL Laminate flooring, coved ceiling, radiator.
LIVING ROOM Radiator, double-glazed sash windows with plantation style shutters, cast iron fireplace, laminate flooring, built-in shelving/storage.
KITCHEN White wall & base units, stainless steel sink unit with mixer tap, Bosch induction hob, double-oven, integrated fridge/freezer & dishwasher. Plumbing for washing machine, space for tumble dryer, breakfast bar, cupboard housing central heating boiler, laminate flooring, radiators, double-glazed skylight, double-glazed doors to garden.
LANDING Laminate flooring.
BEDROOM Double-glazed sash windows, radiator, laminate flooring, built-in wardrobes, stripped pine door.
BEDROOM Double-glazing, radiator, laminate flooring, stripped pine door.
WALK THROUGH DRESSING ROOM Fitted shelving.
BATHROOM/WC Tiled shower cubicle, WC, double wash hand basin with storage below, heated towel rail/radiator, tiled floor, double-glazing, stripped pine door.
LANDING
Oak flooring, double-glazed sash window, Velux window, storage cupboard, radiator, door to:
ENSUITE Tiled shower cubicle, WC, wash hand basin, chrome heated towel rail, double glazed window, tiled floor.
STUDY L-shaped room with reduced head height, under eaves storage, Velux windows, radiator.
REAR GARDEN Artificial lawn, patio, outside lights & tap.
OVERALL SIZE 1309 sq ft (121.6 sq m)
PARKING CPZ C/D Mon - Fri: 10am - 7.30pm Sat: 10am - 4pm
COUNCIL TAX Band E - London Borough of Ealing
£ 2,494.57 - 2025/2026
Viewing
Please contact us on 020 8567 7080 if you wish to arrange a viewing appointment for this property, or require further information.
Energy Performance Certificate
Click here to view the Energy Efficiency Rating and Environmental Impact Rating for this property.
Disclaimer
Russell Collins W5 endeavour to maintain accurate depictions of properties in Virtual Tours, Floor Plans and descriptions, however, these are intended only as a guide and purchasers must satisfy themselves by personal inspection.
Refined Victorian Terrace with Garden and Loft Ensuite
This well-proportioned Victorian terrace blends original detail with thoughtful updates across three double bedrooms, a study area and two bathrooms. A high-ceilinged entrance hall with retained coving leads to a front reception with a wide bay, double-glazed sash windows and plantation shutters. To the rear, a substantial kitchen extension incorporates integrated Bosch appliances and opens via French doors to a notably large, low-maintenance garden.
The first floor provides two double bedrooms and a generous bathroom, complemented by a dressing room that works equally well as a walk-in wardrobe. The converted loft adds a further bedroom with en-suite facilities, plus a useful ancillary space with restricted head height and extensive eaves storage.
The house sits close to Lammas Park and Walpole Park, with South Ealing Station and Ealing Broadway within easy reach, alongside local schools, cafés and nurseries.
ENTRANCE HALL Laminate flooring, coved ceiling, radiator.
LIVING ROOM Radiator, double-glazed sash windows with plantation style shutters, cast iron fireplace, laminate flooring, built-in shelving/storage.
KITCHEN White wall & base units, stainless steel sink unit with mixer tap, Bosch induction hob, double-oven, integrated fridge/freezer & dishwasher. Plumbing for washing machine, space for tumble dryer, breakfast bar, cupboard housing central heating boiler, laminate flooring, radiators, double-glazed skylight, double-glazed doors to garden.
LANDING Laminate flooring.
BEDROOM Double-glazed sash windows, radiator, laminate flooring, built-in wardrobes, stripped pine door.
BEDROOM Double-glazing, radiator, laminate flooring, stripped pine door.
WALK THROUGH DRESSING ROOM Fitted shelving.
BATHROOM/WC Tiled shower cubicle, WC, double wash hand basin with storage below, heated towel rail/radiator, tiled floor, double-glazing, stripped pine door.
LANDING
Oak flooring, double-glazed sash window, Velux window, storage cupboard, radiator, door to:
ENSUITE Tiled shower cubicle, WC, wash hand basin, chrome heated towel rail, double glazed window, tiled floor.
STUDY L-shaped room with reduced head height, under eaves storage, Velux windows, radiator.
REAR GARDEN Artificial lawn, patio, outside lights & tap.
OVERALL SIZE 1309 sq ft (121.6 sq m)
PARKING CPZ C/D Mon - Fri: 10am - 7.30pm Sat: 10am - 4pm
COUNCIL TAX Band E - London Borough of Ealing
£ 2,494.57 - 2025/2026
Viewing
Please contact us on 020 8567 7080 if you wish to arrange a viewing appointment for this property, or require further information.
Energy Performance Certificate
Click here to view the Energy Efficiency Rating and Environmental Impact Rating for this property.
Disclaimer
Russell Collins W5 endeavour to maintain accurate depictions of properties in Virtual Tours, Floor Plans and descriptions, however, these are intended only as a guide and purchasers must satisfy themselves by personal inspection.

