- Ground Floor Conversion
- Share Of Freehold
- 2 Double Bedrooms
- South Facing Rear Garden
- Kitchen/Diner
- Convenient Location
- Very Near Parks/Schools
- Close To Piccadilly Line
Full Description
Spacious Garden Flat with Garden Office Potential
This ground floor flat occupies the entire ground floor of a handsome brick fronted property on Darwin Road and offers two double bedrooms and a private south facing garden. Sold with a share of freehold
Spacious Garden Flat with Garden Office Potential
This ground floor flat occupies the entire ground floor of a handsome brick fronted property on Darwin Road and offers two double bedrooms and a private south facing garden. The kitchen is well proportioned, includes a boiler installed in April 2026, and opens directly onto the garden, with enough space for a home office (subject to consents). Both bedrooms are comfortable doubles, and the bathroom is modern in style.
The location provides easy access to the shops and cafes along South Ealing Road and Northfield Avenue, as well as Piccadilly Line stations. Bus routes connect to Chiswick, Richmond and Ealing Broadway with its Elizabeth Line. Brentford Main Line Station lies just south of the A4 and M4.
The property is sold with a share of freehold.
ENTRANCE Own door to:
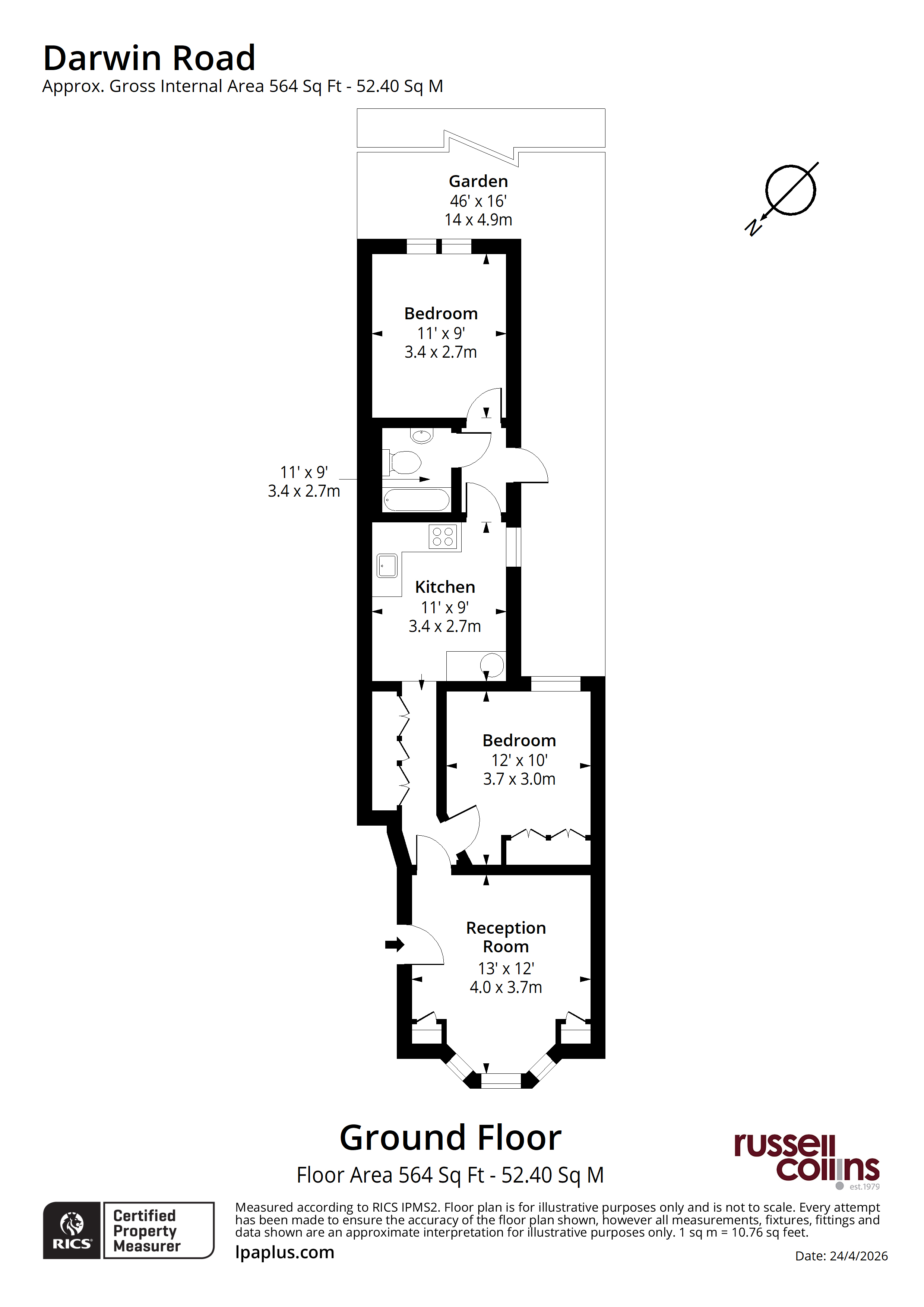
RECEPTION ROOM Ceiling rose, coved ceiling, oak flooring, fitted shelving/storage, double-glazing, stripped pine door.
KITCHEN/DINER Wall & base units, plumbing for washing machine & dishwasher, central heating boiler (renewed April 2026), gas hob, double-oven & grill, stainless steel sink unit with mixer tap, radiator, double-glazing.
HALLWAY Lots of understairs built-in storage, oak flooring.
BEDROOM Stripped pine door, double-glazing, radiator, built-in wardrobe.
BEDROOM Double-glazed window overlooking garden, radiator.
BATHROOM/WC Bath with mixer tap & shower attachment, WC, pedestal wash hand basin, tiled floor & walls, chrome heated towel rail.
LOBBY Door to garden.
REAR GARDEN SOUTH FACING, patio areas, outside lights, 30 ft side return.
OVERALL SIZE 564 sq ft (52.4 sq m)
TENURE Share of Freehold
198 years from 29th September 1985
PARKING CPZ RR Mon-Fri 10-11am & 2-3 pm
COUNCIL TAX Band D - London Borough of Ealing
£2,138.53 - 2026/2027
Viewing
Please contact us on 020 8567 7080 if you wish to arrange a viewing appointment for this property, or require further information.
Energy Performance Certificate
Click here to view the Energy Efficiency Rating and Environmental Impact Rating for this property.
Disclaimer
Russell Collins W5 endeavour to maintain accurate depictions of properties in Virtual Tours, Floor Plans and descriptions, however, these are intended only as a guide and purchasers must satisfy themselves by personal inspection.
Spacious Garden Flat with Garden Office Potential
This ground floor flat occupies the entire ground floor of a handsome brick fronted property on Darwin Road and offers two double bedrooms and a private south facing garden. The kitchen is well proportioned, includes a boiler installed in April 2026, and opens directly onto the garden, with enough space for a home office (subject to consents). Both bedrooms are comfortable doubles, and the bathroom is modern in style.
The location provides easy access to the shops and cafes along South Ealing Road and Northfield Avenue, as well as Piccadilly Line stations. Bus routes connect to Chiswick, Richmond and Ealing Broadway with its Elizabeth Line. Brentford Main Line Station lies just south of the A4 and M4.
The property is sold with a share of freehold.
ENTRANCE Own door to:
RECEPTION ROOM Ceiling rose, coved ceiling, oak flooring, fitted shelving/storage, double-glazing, stripped pine door.
KITCHEN/DINER Wall & base units, plumbing for washing machine & dishwasher, central heating boiler (renewed April 2026), gas hob, double-oven & grill, stainless steel sink unit with mixer tap, radiator, double-glazing.
HALLWAY Lots of understairs built-in storage, oak flooring.
BEDROOM Stripped pine door, double-glazing, radiator, built-in wardrobe.
BEDROOM Double-glazed window overlooking garden, radiator.
BATHROOM/WC Bath with mixer tap & shower attachment, WC, pedestal wash hand basin, tiled floor & walls, chrome heated towel rail.
LOBBY Door to garden.
REAR GARDEN SOUTH FACING, patio areas, outside lights, 30 ft side return.
OVERALL SIZE 564 sq ft (52.4 sq m)
TENURE Share of Freehold
198 years from 29th September 1985
PARKING CPZ RR Mon-Fri 10-11am & 2-3 pm
COUNCIL TAX Band D - London Borough of Ealing
£2,138.53 - 2026/2027
Viewing
Please contact us on 020 8567 7080 if you wish to arrange a viewing appointment for this property, or require further information.
Energy Performance Certificate
Click here to view the Energy Efficiency Rating and Environmental Impact Rating for this property.
Disclaimer
Russell Collins W5 endeavour to maintain accurate depictions of properties in Virtual Tours, Floor Plans and descriptions, however, these are intended only as a guide and purchasers must satisfy themselves by personal inspection.

